Renovación del Housing Fases 4 y 5

Cliente:

Naval Facilities Engineering Command

País:

España

Años:

2021 - 2023

Descripción:

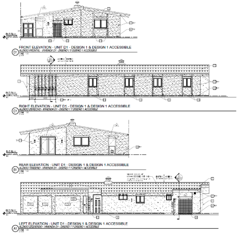
Actuación sobre urbanización compuesta por aproximadamente 400 viviendas unifamiliares de una sola planta, con disposición predominantemente pareada y algunas unidades individuales derivadas de procesos de reforma anteriores.

Las fases contempladas son:

HOUSING Phase IV: intervención integral y ampliación en 82 viviendas unifamiliares pareadas.

HOUSING Phase V: intervención integral y ampliación en 28 viviendas unifamiliares pareadas.

Los trabajos incluyen ejecución de obra civil e instalaciones completas, abarcando interior y exterior de las viviendas. Las actuaciones se orientan a la adaptación funcional de cada unidad habitacional a las necesidades actuales de los usuarios, cumpliendo con los requisitos técnicos y normativos aplicables.